Rif: IMMO-123534631
SAN TEODORO
SASSARI € 79.000- Appartamento
- Vendita
- 44 Mq
- 3 Vani
- 1 Camere
- 1 Bagni
- Giardino 40 mq
- EPI: Non disp.
- Classe energetica: Non soggetto
- Descrizione
- Dettaglio immobile
- Consistenze
- Mappa
- Planimetrie
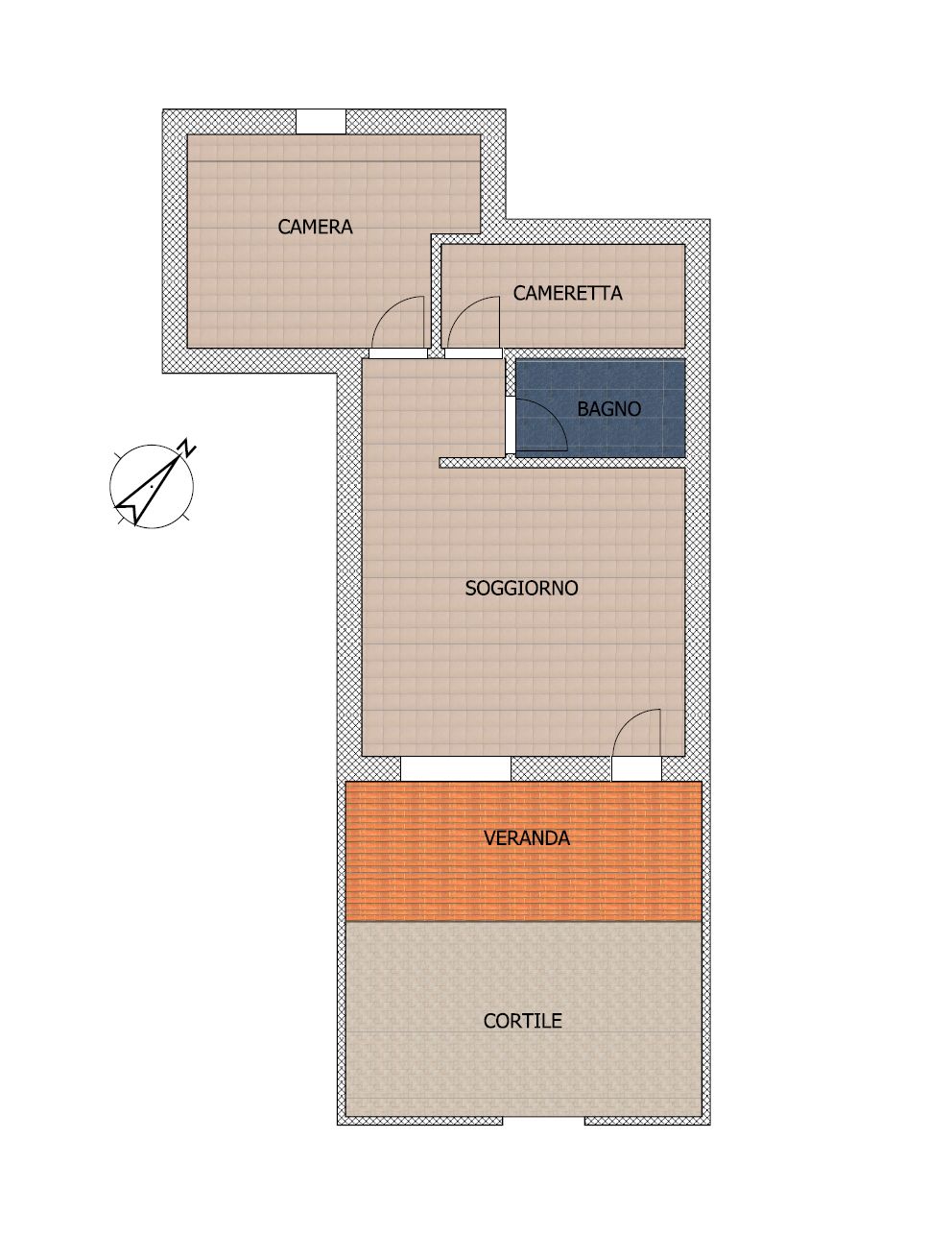
San Teodoro - Loc. Nuragheddu, in residence curato a pochi minuti dalla spiaggia la Cinta, disponiamo di soluzione al piano seminterrato con destinazione d'uso C/02.
L'immobile si sviluppa su un unico livello, un giardino privato fa da ingresso alla soluzione dove troviamo una doccia esterna, la riserva idrica e una comoda veranda nella quale passare piacevoli serate estive. Si apre su un soggiorno luminosa nel suo insieme con divano letto e cucina a vista, un disimpegno divide la zona giorno da quella notte composta a sua volta da una camera matrimoniale con armadio a muro, una cameretta singola e infine un bagno con doccia.
Tenuta bene nel suo insieme la soluzione viene lasciata ammobiliata non presenta grossi lavori da fare, possiede inoltre un posto auto all'interno dell'area condominiale.
Distante pochi minuti dai servizi e dal mare la località ha la tranquillità delle borgate che caratterizzano il comune dove potersi rilassare e godersi le vacanze estive in assoluta tranquillità.
Soluzione dalle mille risorse ottimo investimento.
L'immobile si sviluppa su un unico livello, un giardino privato fa da ingresso alla soluzione dove troviamo una doccia esterna, la riserva idrica e una comoda veranda nella quale passare piacevoli serate estive. Si apre su un soggiorno luminosa nel suo insieme con divano letto e cucina a vista, un disimpegno divide la zona giorno da quella notte composta a sua volta da una camera matrimoniale con armadio a muro, una cameretta singola e infine un bagno con doccia.
Tenuta bene nel suo insieme la soluzione viene lasciata ammobiliata non presenta grossi lavori da fare, possiede inoltre un posto auto all'interno dell'area condominiale.
Distante pochi minuti dai servizi e dal mare la località ha la tranquillità delle borgate che caratterizzano il comune dove potersi rilassare e godersi le vacanze estive in assoluta tranquillità.
Soluzione dalle mille risorse ottimo investimento.
Contratto Vendita
Rif IMMO-123534631
Prezzo € 79.000
Provincia Sassari
Comune San Teodoro
Indirizzo Via di lu Nuragheddu 14">
Vani 3
Camere 1
Bagni 1
Classe energetica
Non soggetto
Riscaldamento inesistente
Condizioni ottime condizioni
Spese condominiali € 50
Anno di costruzione 1990
Arredato si
Cucina angolo cottura
| Descrizione | Superficie | Sup. comm. |
|---|---|---|
| Principali | ||
| Immobile - seminterrato | 40 Mq | 40 Mqc |
| Giardino/Resede | 40 Mq | 4 Mqc |
| Totale | 44 Mqc | |
Zoom della mappa
Apri con:
Apple Maps
Google Maps
Waze
Apri la mappa







